


























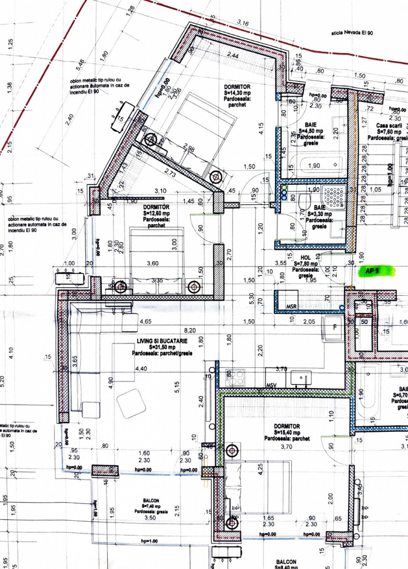
Va prezentam spre vanzare un apartament cu 3 camere, in zona Dacia-Mosilor, intr-un bloc nou. Apartamentul are, in zona de intrare un hol cu zona de cuier si o debara cu spatiul masinii de spalat rufe incorporat. Apartamentul este complet DECOMANDATA printr-un hol din care sunt distribuite toate incaperile. Zona de zi este compusa dintr-un living spatios si o bucatarie deschisa catre acesta, dar care se poate si separa printr-un perete. Tot din zona de zi avem acces pe terasa de 7mp, acesta fiind expus catre Sud-Vest, un loc ideal pentru a te relaxa ! Din holul central aveam acces catre cele 2 dormitoare si catre una din bai. Primul dormitor este situat chiar in fata intrarii. Al doile-a dormitor este cel matrimonial, avand baie proprie cu fereasta. Intreg apartamentul are incalzire prin pardoseala, centrala termica de apartament, distribuitor pentru fiecare incapere. Apartamentul se vinde finisat complet cu parchet si ceramica, baile echipata cu obiecte sanitare.
La biroul de vanzari situat la bloc, putem sa va aratam modelele de finisaje propuse.
Preturile afisate nu includ TVA, aceasta se achita in plus conform legii aplicabile fiecarui cumparator.
Asadar va invitam sa ne sunati pentru programarea unei intalniri la biroul de vanzari.
Descrierea constructiva a imobilului si finisaje
Structura:
- radier general,
- structura pe stalpi si grinzi din beton armat,
- plansee din beton armat,
- inchideri perimetrale si compartimentari interioare din caramida Macofil, cu proprietati de izolare termica si fonica - conform specificatiilor producatorului.
Fatada de 2 tipuri: termosistem ( tencuiala decorativa ) si ventilata
- fatada termosistem - termosistem polistiren 10cm cu densitate 100 si vata de grosime 10cm in dreptul grinzilor, + dibluri si masa de spaclu, + tencuiala decorativa KAPAROL/Duraziv/Isover/Baumit
- fatada ventilata - Bond - intradosuri balcoane
Tamplarie: tamplarie termoizolanta Salamander gama Premium, 6 camere cu sticla tripan, fabricatie Germania, culoare gri antracit. Spatiile vitrate largi cu usi oscilobatante si deschideri mari la terase.
Lift:
- prevazut lift de 4 persoane, marca ORONA ( Spania );
Finisaje interioare:
- scarile si spatiile comune pardoseli din granit/ceramica
- pardoselile apartamentelor:
- in bai si bucatarie placi ceramice de calitate superioara;
- in spatiile de locuit, parchet stratificat special pt incalzirea in pardoseala;
- plinta 10cm alba Duropolimer,
- pardoselile teraselor si balcoanelor din gresie de calitate superioara de exterior,
- inchideri balcoane si terase parapet din sticla securizata 6.2.6. transparenta 100%,
- usi interioare celulare cu fete furniruite Pinum culoare alba;
- usa la intrare in apartament metalica si blindata, cu balamale antiefractie Pinum,
- peretii zugraviti vopsea lavabila cu teflon culori alb,
- bazine wc incastrat in perete TECE,
Obiecte sanitare:
· cada baie: cada acrilica 170cm x 70cm;
· cabina dus: walk in easy 80 -100cm, perete de sticla fiamat / transparent 8mm,
· vas wc: alb, suspendat, cu capac quick release,
· corpuri lavoare: dulap baza pe blat, 1-3 sertare in functie de tipul baii.
· lavoar bai: alb, pe blat
· lavoar baie serviciu: freestanding din marmura artificiala
Accesorii sanitare marca Grohe / KLUDI:
· baterie dus,
· baterie cada
· baterie lavoar cu ventil push-open,
· corp baterie lavoar,
· cot conector fixfit,
· furtun dus 160cm,
· baterie lavoar,
· para dus,
- aerisire bai: aerisire naturala, iar baile fara fereastra, cu ventilatoare cu circuit dublu: scot aer viciat si baga aer proaspat
- balconul este prevazut cu scurgerea apei prin sifoane de pardoseala de capacitate mare;
Sistemul de incalzire:
- incalzire prin pardoseala, marca HERTZ Austria,
- senzor de gaz cu supapa de inchidere montat in bucatarie,
- in fiecare apartament este montat un distribuitor pentru instalatia de incalzire,
- Pardoseala calda va fi comandata on/off de termostat zonal wireless, plus cronostermostat perete digital;
- In toate baile / grupurile sanitare se vor monta corpuri de incalzire statice, tip portprosop.
- Radiatoarele de tip portprosop montate in grupurile sanitare vor avea acelasi agent termic folosit si pentru incalzirea in pardoseala,
- Contorizarea de gaz, curent electric si apa rece va fi individuala pentru fiecare apartament.
- Contoarele pentru fiecare apartament vor fi montate in zona comuna a imobilului, in nisa vizitabila, NU in apartamente.
- centrala termica individuala de apartament in condensatie marca Ariston/SaunierDuval.
Instalatia electrica:
- tabloul electric: va contine circuite separate pentru iluminat, prize, suplimentar circuite separate pt cuptor electric, centrala termica, aer conditionat, frigider.
- apartamentele se predau: cu prize si intrerupatoare montate, fara obiecte de iluminat,
- iluminare interioara LED spatii comune, pe spatiile exterioare ale imobilului vor fi lampi LED cu senzor de miscare,
Utilitati si facilitati:
- Accesul in imobil este securizat, video interfon pe baza de cod si cartele magnetice
- toate utilitatile sunt contorizate individual pentru fiecare apartament, contori la iesirea din apartament si conexiuni functionale la retele publice de utilitati,
- se realizeaza traseul instalatiei de AC prin pereti, de la locul prevazut amplasarii unitatilor interioare pana la locurile special prevazute pentru amplasarea unitatilor exterioare,
- Se va monta un singur aparat de AC in zona de living, iar pentru celelalte incaperi fiecare proprietar isi va achizitiona propriul model de AC care va fi montat insa pe instalatia deja prevazuta de dezvoltator,
- la bucatarie vor fi doar instalatiile de apa, scurgere si cabluri electrice prin perete.
- fiecare apartament are amenajat locul masinii de spalat: scurgere, apa, curent electric,
- conectare telefon/cablu tv/ internet: fiecare apartament va avea cablurile in pereti si conexiune la prizele din fiecare camera.
Sistemul de alimentare cu apa:
- fiecare apartament are montat apometru pentru apa rece,
- imobilul este dotat cu un sistem de pompare a apei cu hidrofor;
Subsol:
- rampa acces la subsol,
- acces pietonal prin scara blocului si cu liftul cu statie directa subsol,
- accesul auto prin rampa si acces controlat cu telecomanda;
- locuri de parcare individuale/de tip Klaus cu bașă - individuale;
Izolarea termica si hidrologica la planseu:
Executia lucrarii este facuta de firma specializata, cu garantie la manopera si materiale conform specificatiilor producatorului:
- 2 straturi de membrana hidroizolatoare,
- 1 strat de polistiren expandat de 20cm grosime si densitate 100
- 1 sapa autonivelanta
- 2 straturi de membrana hidroizolanta
Acces si Securitate:
- proprietatea este securizata perimetral cu gard de caramida/beton, finisat ;
- videointerfon pentru acces in apartamente,
- accesul la subsol se face pe baza de usa actionata cu telecomanda,
- sistem de supraveghere video pentru subsol, spatiile interioare comune de la parter si spatiile perimetrale exterioare.
- la parter exista o incapere de serviciu pentru serverul sistemului video si/sau depozitare.
Vino la biroul de vanzari pentru detalii suplimentare.